Лидер 10

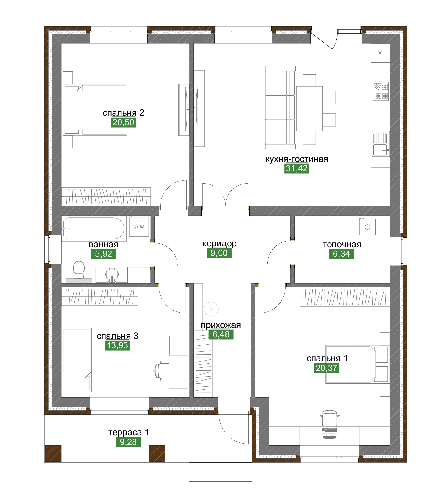
Одноэтажный дом с современной планировкой, идеально подходящий для семьи из 4–6 человек. Большая кухня-гостиная создает единое пространство для приготовления пищи, отдыха и семейного общения, визуально расширяя жилую зону.

Три просторные спальни обеспечивают комфортное размещение всех членов семьи. Две основные спальни имеют практически одинаковую площадь и подходят для родителей и подростков, третья может использоваться как детская или кабинет.

В доме предусмотрена удобная ванная комната с современной планировкой и функциональная прихожая с местом для верхней одежды. Просторный коридор обеспечивает удобное перемещение между всеми помещениями дома.

Топочная большой площади позволяет разместить все необходимое инженерное оборудование для автономного отопления и может использоваться как кладовая. Терраса создает дополнительное пространство для отдыха на свежем воздухе и проведения семейных мероприятий. Продуманная планировка обеспечивает максимальное использование площади и создает ощущение простора.

Комфортная планировка

Plan

Отдел продаж

Консультации

Профессиональные консультанты предоставят полную информацию о доступных домах, особенностях поселка, инфраструктуре и условиях покупки.

Организация просмотров

Мы организуем удобные для вас просмотры домов, чтобы вы могли лично оценить качество строительства и планировку жилья.

Индивидуальный подход

Мы учитываем все ваши пожелания и требования, помогая подобрать идеальный дом для вашей семьи.

Юридическое сопровождение

Наши юристы обеспечат юридическую чистоту сделки и помогут с оформлением всех необходимых документов.

Ипотечное и финансовое консультирование

Ипотечное и финансовое консультирование: Мы предлагаем консультации по ипотечным программам и помощь в получении кредита на покупку жилья.