Doncaster таунхаус

Проект таунхауса "Doncaster" — это современное и компактное жильё, идеально подходящее для комфортной жизни. Каждая секция представляет собой двухэтажное пространство с продуманной планировкой, где гармонично сочетаются функциональность и уют.

На первом этаже расположена просторная кухня-гостиная — сердце дома, где удобно готовить, отдыхать и собираться с близкими. Отдельный гараж избавит от проблем с парковкой, а компактная кладовая поможет поддерживать порядок.

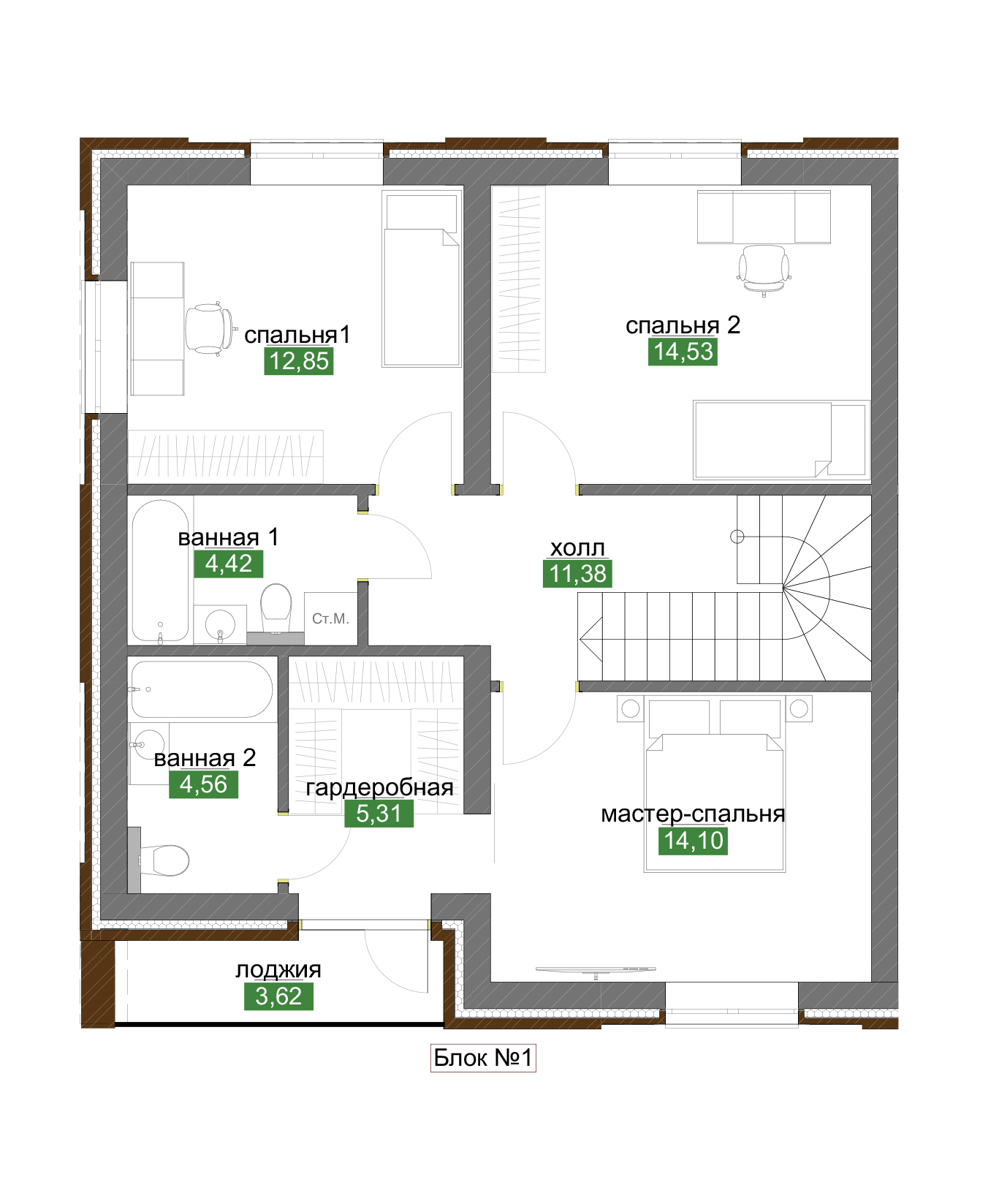
Второй этаж отведён под приватную зону: здесь находятся три уютные спальни, включая мастер-спальню с гардеробной, и две ванные комнаты, что обеспечивает комфорт для всех жильцов. Лоджия станет приятным дополнением, создавая уголок для отдыха на свежем воздухе.

"Doncaster" — это удачное сочетание практичности и современного дизайна, создающее уютное пространство для жизни.

Комфортная планировка

Plan

Отдел продаж

Консультации

Профессиональные консультанты предоставят полную информацию о доступных домах, особенностях поселка, инфраструктуре и условиях покупки.

Организация просмотров

Мы организуем удобные для вас просмотры домов, чтобы вы могли лично оценить качество строительства и планировку жилья.

Индивидуальный подход

Мы учитываем все ваши пожелания и требования, помогая подобрать идеальный дом для вашей семьи.

Юридическое сопровождение

Наши юристы обеспечат юридическую чистоту сделки и помогут с оформлением всех необходимых документов.

Ипотечное и финансовое консультирование

Ипотечное и финансовое консультирование: Мы предлагаем консультации по ипотечным программам и помощь в получении кредита на покупку жилья.