Исток 3

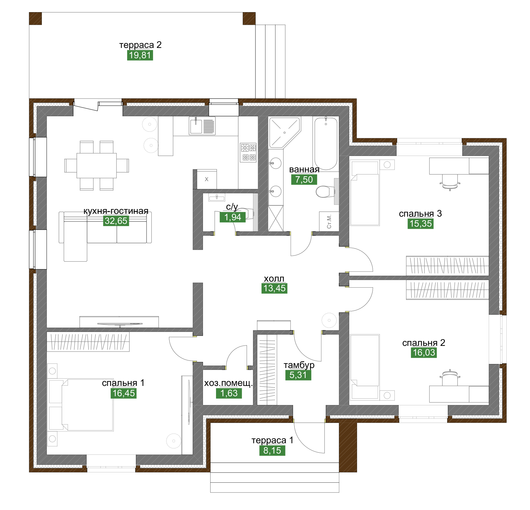
Одноэтажный дом с функциональной планировкой, идеально подходящий для семьи из 4–6 человек. Просторная кухня-гостиная является центром дома, объединяя зоны приготовления пищи и отдыха в едином светлом пространстве для комфортного семейного общения.

Три спальни различной площади обеспечивают гибкость в планировании жилого пространства. Главная спальня подойдет для родителей, две другие могут использоваться как детские комнаты, кабинет или гостевая зона в зависимости от потребностей семьи. В доме предусмотрена просторная ванная комната с удобной планировкой и отдельный санузел, что особенно важно для комфорта большой семьи в утренние часы. Функциональный тамбур создает буферную зону между улицей и жилыми помещениями.

Особенностью проекта являются две террасы — большая основная терраса для семейного отдыха и организации мероприятий на свежем воздухе, и компактная дополнительная. Хозяйственное помещение решает вопросы хранения инвентаря и сезонных вещей. Просторный холл обеспечивает удобное перемещение между всеми зонами дома.

Комфортная планировка

Plan

Отдел продаж

Консультации

Профессиональные консультанты предоставят полную информацию о доступных домах, особенностях поселка, инфраструктуре и условиях покупки.

Организация просмотров

Мы организуем удобные для вас просмотры домов, чтобы вы могли лично оценить качество строительства и планировку жилья.

Индивидуальный подход

Мы учитываем все ваши пожелания и требования, помогая подобрать идеальный дом для вашей семьи.

Юридическое сопровождение

Наши юристы обеспечат юридическую чистоту сделки и помогут с оформлением всех необходимых документов.

Ипотечное и финансовое консультирование

Ипотечное и финансовое консультирование: Мы предлагаем консультации по ипотечным программам и помощь в получении кредита на покупку жилья.