Исток 2.1

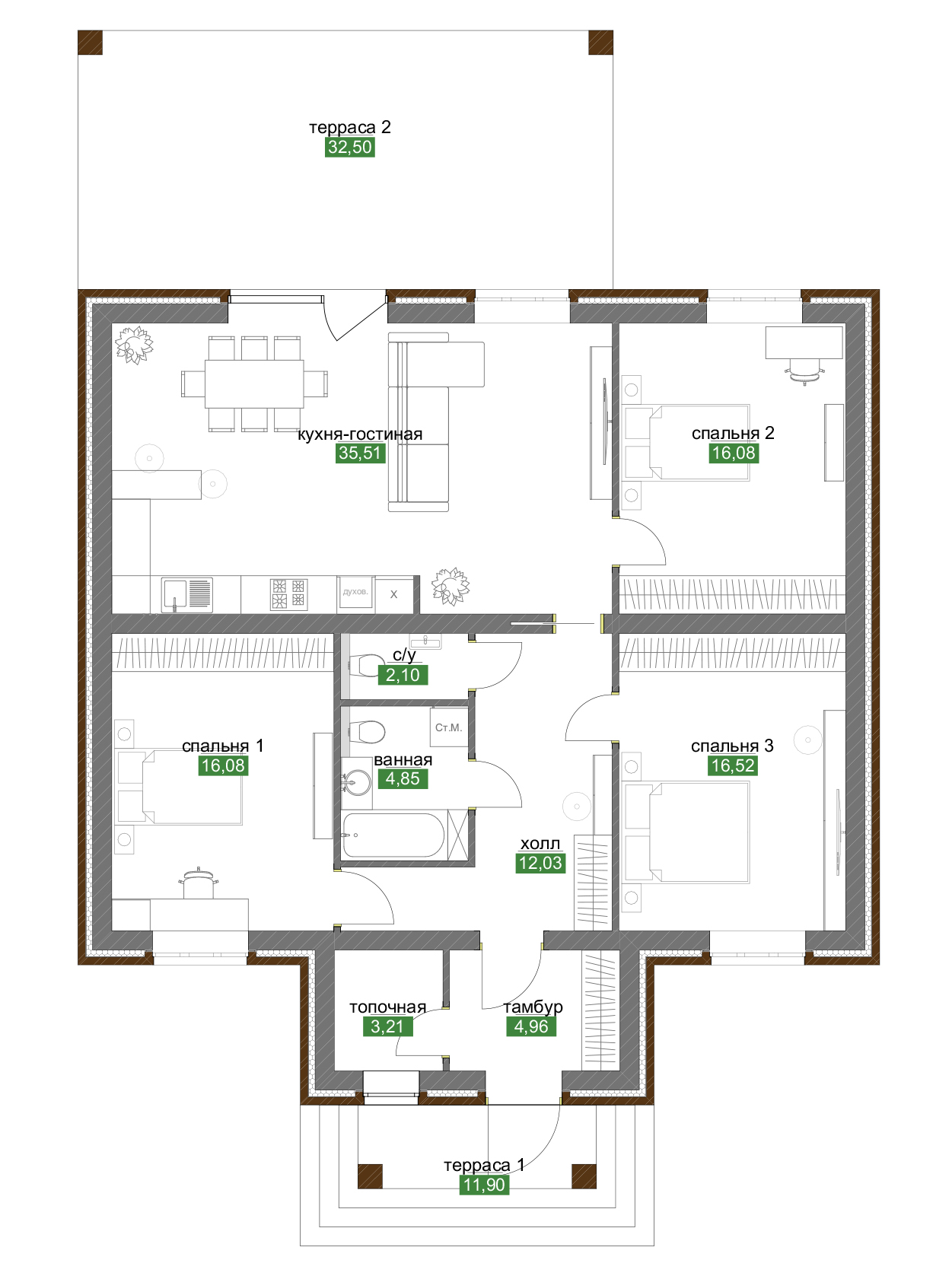
Проект дома "Исток 2.2" — это воплощение уютного и продуманного загородного жилья, созданного для комфортной семейной жизни. Сердцем дома становится просторная кухня-гостиная — светлое и многофункциональное пространство, идеально подходящее как для повседневных семейных трапез, так и для дружеских встреч.

Три уютные спальни обеспечивают комфортный отдых для всех домочадцев, а продуманная планировка с удобным холлом создает ощущение простора и гармонии. Особое внимание уделено бытовому удобству: здесь есть отдельная ванная комната, компактный санузел, практичный тамбур для хранения вещей и функциональная топочная.

Две террасы разного размера становятся приятным дополнением к жилому пространству, предлагая возможность наслаждаться свежим воздухом и природой в любое время года. "Исток 2.2" — это дом, где каждая деталь продумана для создания атмосферы уюта и спокойствия.

Комфортная планировка

Plan

Отдел продаж

Консультации

Профессиональные консультанты предоставят полную информацию о доступных домах, особенностях поселка, инфраструктуре и условиях покупки.

Организация просмотров

Мы организуем удобные для вас просмотры домов, чтобы вы могли лично оценить качество строительства и планировку жилья.

Индивидуальный подход

Мы учитываем все ваши пожелания и требования, помогая подобрать идеальный дом для вашей семьи.

Юридическое сопровождение

Наши юристы обеспечат юридическую чистоту сделки и помогут с оформлением всех необходимых документов.

Ипотечное и финансовое консультирование

Ипотечное и финансовое консультирование: Мы предлагаем консультации по ипотечным программам и помощь в получении кредита на покупку жилья.