Лидер 3

Проект "Лидер 3" - идеальное решение для комфортной жизни

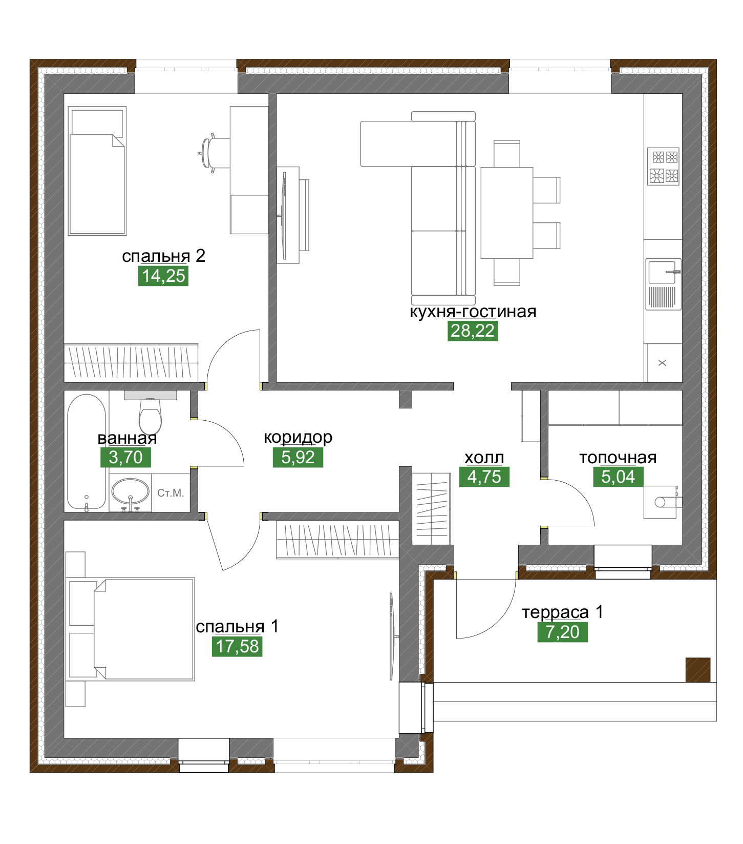
Компактный и функциональный дом станет отличным выбором для семьи, ценящей уют и практичность. Проект предлагает оптимальную планировку с двумя спальнями и просторной кухней-гостиной.

Ключевые преимущества планировки:

Зонирование и функциональность: Открытая кухня-гостиная площадью 28,22 м² создает ощущение простора и становится центром семейной жизни. Отдельный вход в хозяйственную зону через холл обеспечивает удобство в быту.
Приватность и комфорт: Две изолированные спальни (17,58 м² и 14,25 м²) гарантируют комфортный отдых. Главная спальня имеет удобный доступ к санузлу, а вторая идеально подходит для детской или гостевой.
Практичные решения: Просторная терраса 7,20 м² расширяет жилое пространство в теплое время года. Топочная комната 5,04 м² обеспечивает автономное отопление дома.

Проект "Лидер 3" - это грамотное использование каждого квадратного метра для создания максимально комфортного жилья.

Комфортная планировка

Plan

Отдел продаж

Консультации

Профессиональные консультанты предоставят полную информацию о доступных домах, особенностях поселка, инфраструктуре и условиях покупки.

Организация просмотров

Мы организуем удобные для вас просмотры домов, чтобы вы могли лично оценить качество строительства и планировку жилья.

Индивидуальный подход

Мы учитываем все ваши пожелания и требования, помогая подобрать идеальный дом для вашей семьи.

Юридическое сопровождение

Наши юристы обеспечат юридическую чистоту сделки и помогут с оформлением всех необходимых документов.

Ипотечное и финансовое консультирование

Ипотечное и финансовое консультирование: Мы предлагаем консультации по ипотечным программам и помощь в получении кредита на покупку жилья.