Лидер 12

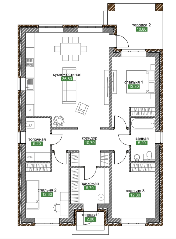
Проект «Лидер 12» — это современный одноэтажный дом, объединяющий удобство, функциональность и уют. Просторная кухня-гостиная площадью почти 37 м² является сердцем дома: здесь легко разместить зону отдыха и обеденный стол для всей семьи. Из гостиной предусмотрен выход на уютную террасу, где можно проводить вечера на свежем воздухе.

Дом включает три изолированные спальни, что позволяет комфортно разместить как семью с детьми, так и гостей. Главная спальня находится в уединённой части дома и располагается рядом с ванной комнатой. Дополнительно предусмотрены ещё две спальни оптимальной площади, которые могут использоваться как детские, гостевые или кабинет.

Функциональность планировки дополняется просторной прихожей и удобным коридором, а топочная изолирована от жилых помещений. Второй выход на небольшую террасу подчёркивает практичность и комфорт проживания.

«Лидер 12» — идеальное решение для тех, кто ценит гармонию пространства, семейный уют и современный стиль жизни.

Комфортная планировка

Plan

Отдел продаж

Консультации

Профессиональные консультанты предоставят полную информацию о доступных домах, особенностях поселка, инфраструктуре и условиях покупки.

Организация просмотров

Мы организуем удобные для вас просмотры домов, чтобы вы могли лично оценить качество строительства и планировку жилья.

Индивидуальный подход

Мы учитываем все ваши пожелания и требования, помогая подобрать идеальный дом для вашей семьи.

Юридическое сопровождение

Наши юристы обеспечат юридическую чистоту сделки и помогут с оформлением всех необходимых документов.

Ипотечное и финансовое консультирование

Ипотечное и финансовое консультирование: Мы предлагаем консультации по ипотечным программам и помощь в получении кредита на покупку жилья.