Лидер 15

Проект дома "Лидер 15" — это двухэтажное комфортабельное жилье, созданное для современной загородной жизни. На первом этаже вас встретит просторная кухня-гостиная — сердце дома, где удобно готовить, собираться всей семьей и принимать гостей. Здесь же расположена уютная спальня, практичный санузел и топочная, а отдельный гараж защитит ваш автомобиль от непогоды.

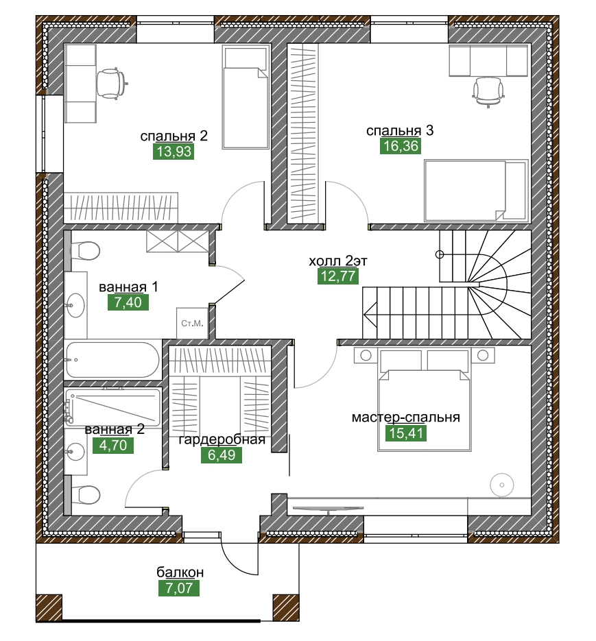
Второй этаж превращает дом в полноценное семейное гнездо с тремя комфортабельными спальнями, включая роскошную мастер-спальню с гардеробной. Две ванные комнаты избавят от утренних очередей, а просторный холл объединяет приватную зону. Балкон добавляет дому очарования, создавая уголок для отдыха с видом на окружающую природу.

"Лидер 15" сочетает в себе рациональную планировку, уют и все необходимое для счастливой жизни за городом. Это дом, где каждый квадратный метр работает на ваш комфорт.

Комфортная планировка

Plan

Отдел продаж

Консультации

Профессиональные консультанты предоставят полную информацию о доступных домах, особенностях поселка, инфраструктуре и условиях покупки.

Организация просмотров

Мы организуем удобные для вас просмотры домов, чтобы вы могли лично оценить качество строительства и планировку жилья.

Индивидуальный подход

Мы учитываем все ваши пожелания и требования, помогая подобрать идеальный дом для вашей семьи.

Юридическое сопровождение

Наши юристы обеспечат юридическую чистоту сделки и помогут с оформлением всех необходимых документов.

Ипотечное и финансовое консультирование

Ипотечное и финансовое консультирование: Мы предлагаем консультации по ипотечным программам и помощь в получении кредита на покупку жилья.