Лидер 11

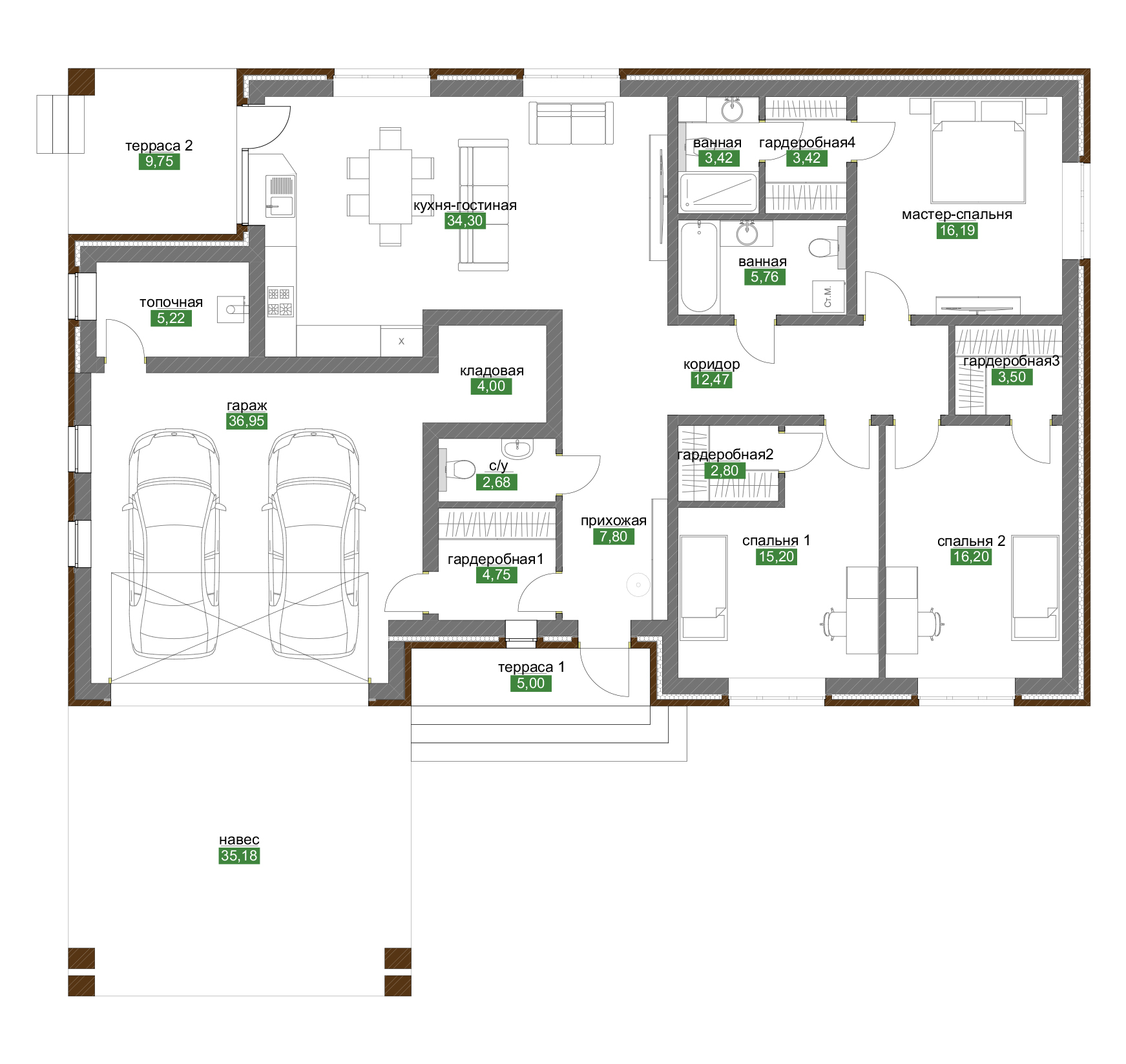
Проект дома "Лидер 11" — это воплощение роскошного и продуманного пространства для жизни, где каждая деталь создана для вашего комфорта. Центральное место занимает уютная кухня-гостиная, объединяющая в себе зону приготовления пищи и отдыха — идеальное место для семейных вечеров и дружеских встреч.

Дом предлагает две просторные спальни, включая мастер-спальню с гардеробной, обеспечивая уют и приватность для всех членов семьи. Четыре гардеробные и кладовая решают все вопросы хранения, а удобная планировка с прихожей и коридором делает перемещение по дому легким и приятным.

Особого внимания заслуживает огромный гараж, который с легкостью вместит не только автомобили, но и все необходимое. Две террасы и навес создают дополнительные возможности для отдыха на свежем воздухе в любое время года. "Лидер 11" — это дом, где продумано все: от удобства повседневной жизни до приема гостей.

Комфортная планировка

Plan

Отдел продаж

Консультации

Профессиональные консультанты предоставят полную информацию о доступных домах, особенностях поселка, инфраструктуре и условиях покупки.

Организация просмотров

Мы организуем удобные для вас просмотры домов, чтобы вы могли лично оценить качество строительства и планировку жилья.

Индивидуальный подход

Мы учитываем все ваши пожелания и требования, помогая подобрать идеальный дом для вашей семьи.

Юридическое сопровождение

Наши юристы обеспечат юридическую чистоту сделки и помогут с оформлением всех необходимых документов.

Ипотечное и финансовое консультирование

Ипотечное и финансовое консультирование: Мы предлагаем консультации по ипотечным программам и помощь в получении кредита на покупку жилья.